TRIBUNAL

CENTRU

Caracteristici

Codul ofertei
TNT7105
Oferta
Vanduta/Inchiriata
Suprafata:
56 mp
Preț
29.900 Euro
Front Stradal:
0 m
Zona:
CENTRU
Repere:
TRIBUNAL

Descriere

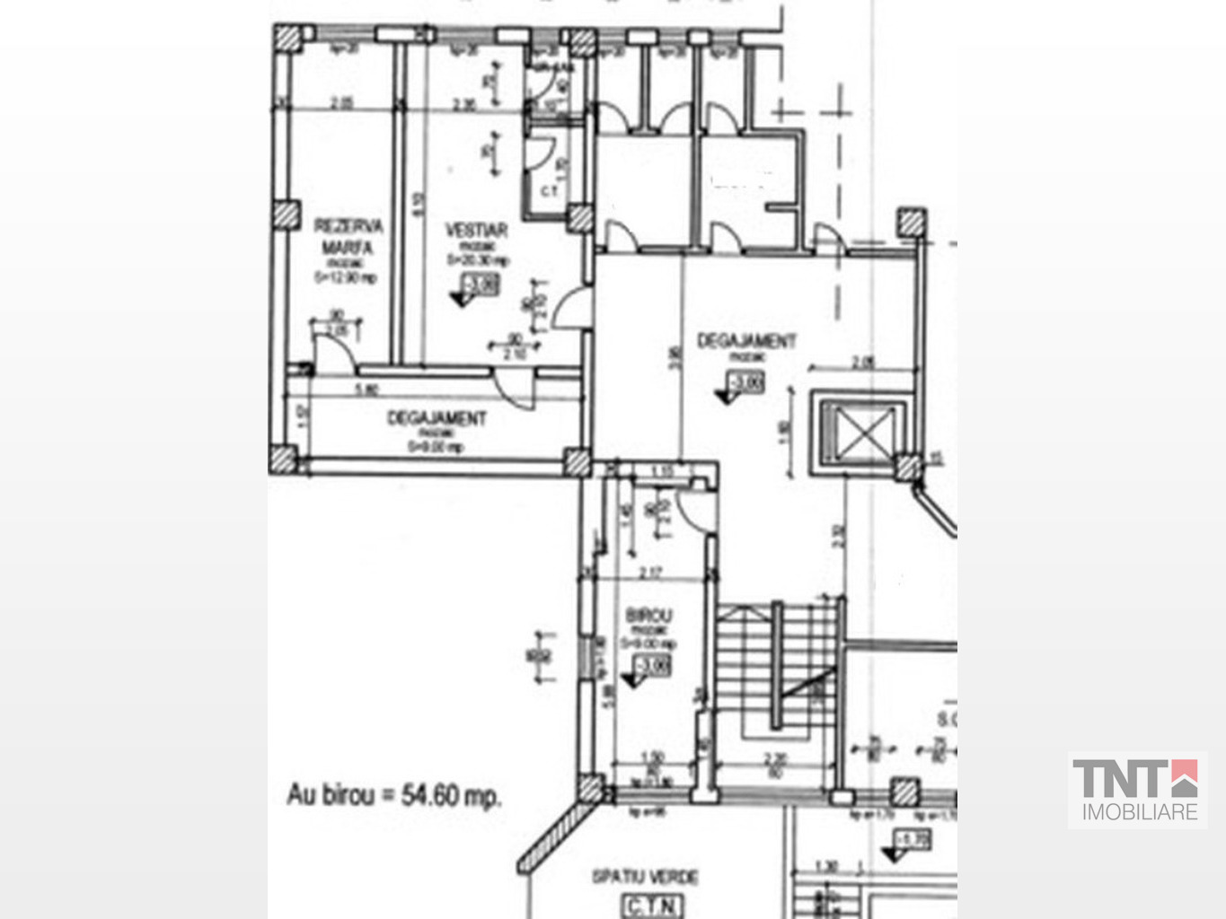
Spatiu comercial Centru-Hala

    Agentia TNT Imobiliare va ofera la vanzare spatiu comercial cu 2 camere, in Iasi. Imobilul de vanzare este alcatuita din 2 camere+ 1 camera separat. Aceasta este situat la parter intr-un imobil cu 8 etaje in Iasi, zona Centru-Tribunal.

    Imobilul este in stare foarte buna, pret de vanzare 32000 Euro TVA inclus. Pentru mai multe informatii sau pentru alte oferte ale agentiei, nu ezitati sa ne contactati la numerele de mai jos sau la sediul nostru pe Bld. Nicolae Iorga, nr.7B.

 Pentru mai multe informatii si date exacte suna acum si stabileste o intalnire cu unul din consultantii nostri:Mihaela Tehutu la tel.0743928736, Bamboi Gabriel la tel. 0754455523.

Facilități

  • Incalzire: Centrala Proprie
  • Mobilat: Nemobilat
  • Parchet
  • Gaz
  • Apometre
  • Var Lavabil
  • Internet

Contact Agent