PETROM

BUCIUM

Caracteristici

Codul ofertei
TNT17872
Oferta
Vanduta/Inchiriata
Categorie:
Casa
Preț
78.228 Euro
Suprafata Casa:
87 mp
Suprafata Teren:
0 mp
Camere:
3
Compartimentare:
Decomandat
Confort:
Lux
Bucatarie:
1
Bai:
2
Etaje:
0
Balcoane:
1
An Constructie:
2015
Front Stradal:
Nu
Structura:
Pe Cadre
Acoperis Mansardat:
Nu
Clasificare Seismica:
Absent
Zona:
BUCIUM
Repere:
PETROM
Accepta Credit:
Da
Comision:
0%

Descriere

Casa Francesca este o casă spaţioasă, proiectată special pentru familiile care pur şi simplu doresc să se bucure de suprafeţe generoase.
Dispusă longitudinal, sporindu-i astfel senzaţia de grandoare, Casa Francesca este organizată pe un singur nivel dar compartimentată astfel încât să satisfacă cerinţele şi aşteptărille vieţii de zi cu zi.

REALIZARE FUNCŢIONALĂ:

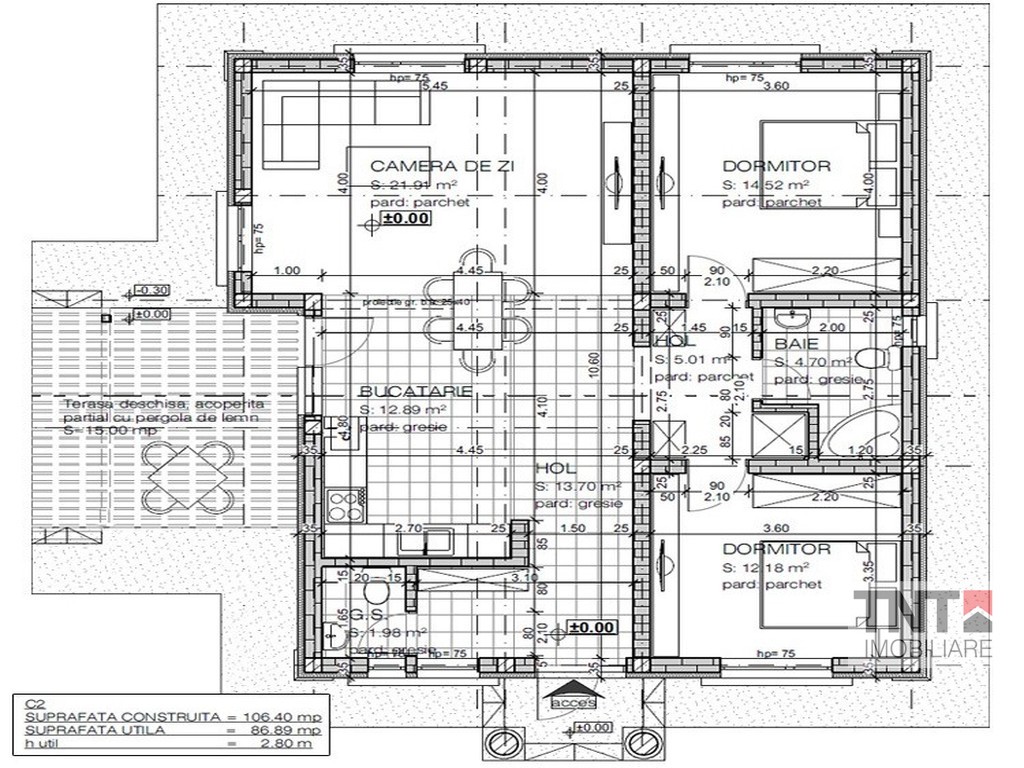
Casa Francesca are regimul de înălţime PARTER, înscriindu-se în plan într-o formă dreptunghiulară cu lungimea de 11,30m şi cu lăţimea de 10m.
Acoperişul este de tip şarpantă din lemn, cota maximă la coamă fiind de +5,05m şi la streaşină de +3,03m, iar înălţimea utilă interioară rezultată fiind de 2,8m.Funcţionalul acesteia prevede: cameră de zi, 2 dormitoare, bucătărie, 2 băi şi 2 holuri. Accesul se face printro terasă protejată, iar din bucătărie se iese pe o terasă acoperită cu o pergolă din lemn.

Din punct de vedere funcţional, compartimentările au dus la următoarele spaţii utile:

  • CAMERA DE ZI = 21,91 m2
  • DORMITOR 1 = 14,52 m2
  • DORMITOR 2 = 12,18 m2
  • BUCĂTĂRIE = 12,89 m2
  • HOL 1 = 13,70 m2
  • HOL 2 = 5,01 m2
  • BAIE1 = 1,98 m2
  • BAIE2 = 4,70 m2
 

DETALII CONSTRUCTIVE:

  • fundaţii continue din beton armat sub stâlpişori 25cmx25cm;
  • planşeu peste sol - placă din beton armat de 10cm grosime;
  • structura de rezistenţă este alcătuită din zidărie portantă (cărămidă BRIKSTONE), cu centuri de 25cmx20cm şi grinzi din beton armat;
  • închideri exterioare realizate din cărămida portantă (BRIKSTONE);
  • termoizolaţie exterioară de 100 mm;
  • tâmplărie din PVC marca VEKA Germania, cu sticlă Saint-Gobain Franţa;
  • acoperiş de tip şarpantă din lemn şi învelitoare din ţiglă metalică, termoizolată cu vată minerală;
  • centrală termică proprie, pe gaz;
  • sistem de canalizare.
  • Pentru orice informatie referitoare la achizii contactati brokerii imobiliari Bamboi Gabriel tel. 0754.455.523 si Tehutu Mihaela tel. 0743.928.736

Facilități

  • Incalzire: Centrala Proprie
  • Mobilat: Nemobilat
  • Termopane
  • Termosistem
  • Gresie Faianta
  • Parchet
  • Gaz
  • Geam la Baie
  • Apometre
  • Usa Metalica
  • Var Lavabil
  • Cablu Tv
  • Telefon fix
  • Internet

Contact Agent