Capat Pacurari

PACURARI

Caracteristici

Codul ofertei
TNT1592
Oferta
Vanduta/Inchiriata
Locație
Capat Pacurari , PACURARI
Preț
52.000 Euro
Categorie:
Apartament
Compartimentare:
Decomandat
Tip:
Vanzare
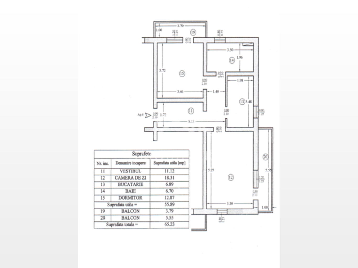
Suprafață:
65 m2
Camere:
2
Bai:
1
Bucatarie:
1
Balcoane:
2
Etaj:
1 din 3
Confort:
Confort I
An Constructie:
2010
Structura:
BCA
Acoperis Mansardat:
Nu
Clasificare Seismica:
Absent
Accepta Credit:
Da
Comision:
0%

Descriere

Apartamente noi Iasi Popas Pacurari 2 camere decomandate, amenajari moderne, termosistem de 10 cm, centrala termica, loc parcare si gradinita cu plante si pomi decorativi. Suprafata utila este de 55,89 mp, iar suprafata totala este de 65,23 mp totul pentru doar 52000 Euro. COMISION 0%

Facilități

  • Termopane
  • Gaz
  • Apometre
  • Telefon fix
  • Internet
  • Interfon

Contact Agent