CUG

CUG

Caracteristici

Codul ofertei
TNT18253
Oferta
Vanduta/Inchiriata
Locație
CUG , CUG
Preț
55.000 Euro
Categorie:
Apartament
Compartimentare:
Decomandat
Tip:
Vanzare
Suprafață:
74 m2
Camere:
3
Bai:
2
Bucatarie:
1
Balcoane:
1
Etaj:
3 din 4
Confort:
Confort I
An Constructie:
1987
Structura:
De Placi
Acoperis Mansardat:
Nu
Clasificare Seismica:
Absent

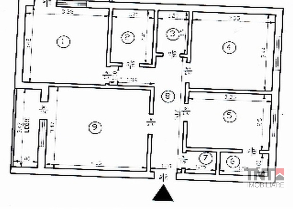
Descriere

Apartament 3 camere Nicolina - Cug.

Apartament 3 camere situat la etaj intermediar, constructie 1987.

Apartamentul este amenajat, are  gresie si faianta, centrala termica, parchet laminat, tamplarie pvc la exterior , balcon inchise cu pvc, tamplarie din lemn la interior, usa metalica.

De asemenea apartamentul dispune de doua grupuri sanitare.

Pretul solicitat de proprietar este de 55000 euro neg.

Pentru mai multe informatii despre acest imobil sau despre alte oferte similare in zona Nicolina - Cug, ne puteti contacta la nr. de telefon - 0740.273.101  

 

Facilități

  • Incalzire: Centrala Proprie
  • Mobilat: Nemobilat
  • Termopane
  • Gresie Faianta
  • Parchet
  • Gaz
  • Apometre
  • Usa Metalica
  • Var Lavabil
  • Cablu Tv
  • Telefon fix
  • Internet
  • Interfon

Contact Agent