Universitate

COPOU

Caracteristici

Codul ofertei
TNT22142
Oferta
Vanduta/Inchiriata
Locație
Universitate , COPOU
Preț
80.000 Euro
Categorie:
Apartament
Compartimentare:
Decomandat
Tip:
Vanzare
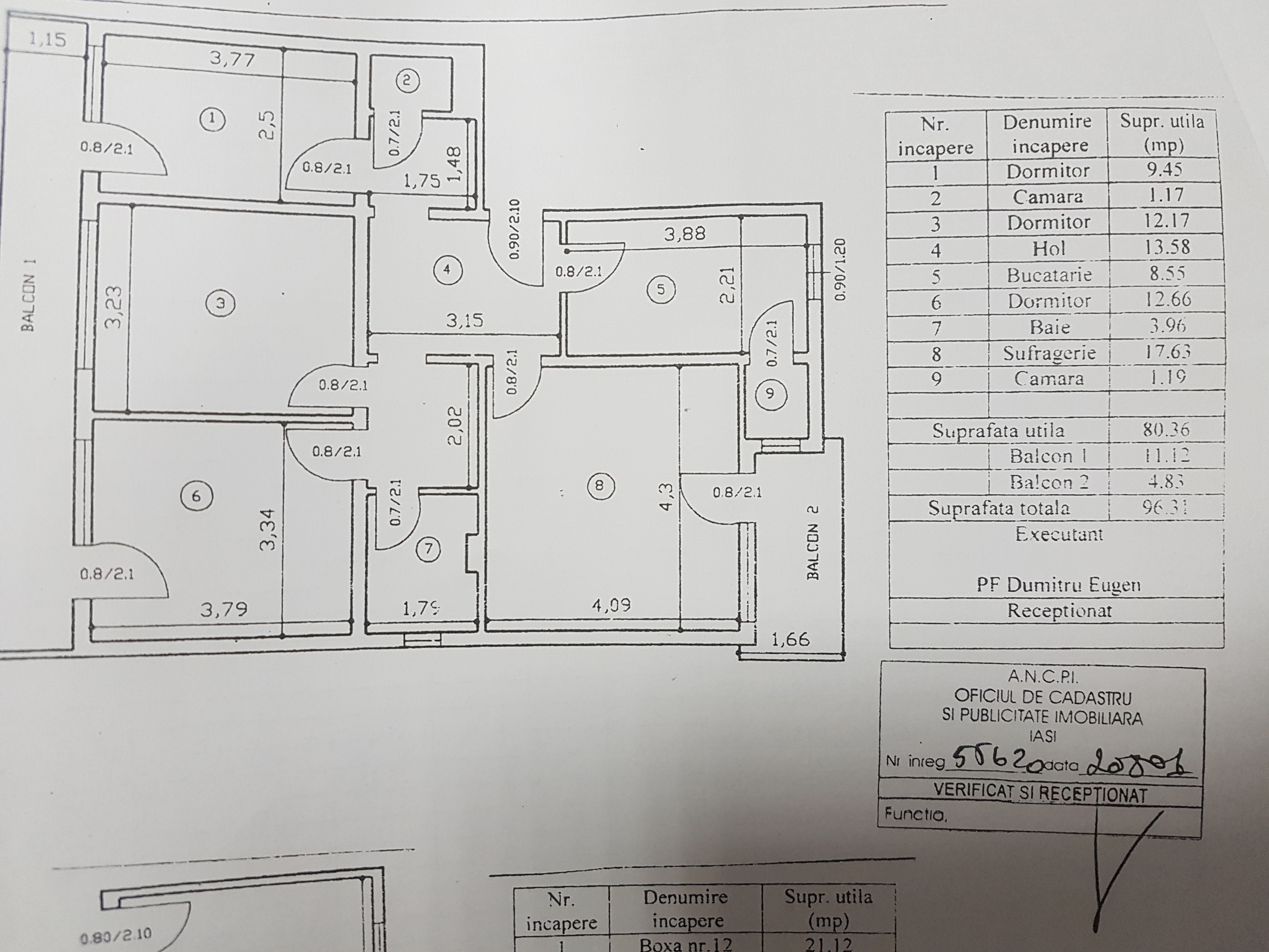
Suprafață:
92 m2
Camere:
4
Bai:
2
Bucatarie:
1
Balcoane:
2
Etaj:
4 din 4
Confort:
Confort I
An Constructie:
1972
Structura:
Pe Cadre
Acoperis Mansardat:
Nu
Clasificare Seismica:
Grad III

Descriere

Agentia TNT Imobiliare va ofera la vanzare apartament cu 4 camere decomandat cu suprafata de 92 mp. Apartamentul este amplasat intr-un bloc din 1972,  intr-o zona foarte frumoasa, linistita cu acces facil la statii mijloace de transport, magazine, farmacii, scoli, gradinite.In imediata apropiere avem Parcul Copou.
 
 Apartamentul de vanzare este decomandat alcatuit din 4 camere, 2 bai, bucatarie, 2 balcoane. Acesta este situat la etajul 4 intr-un imobil cu 4 etaje.
 
 Apartamentul are confort sporit, este dotat cu centrala termica proprie, faianta si gresie, parchet, termopane, usa metalica, izolat termic, 2 balcoane inchise(1 inchis).
 
 Pentru mai multe informatii sau pentru alte oferte ale agentiei, nu ezitati sa ne contactati la numerele de mai jos sau la sediul nostru pe Bld. Nicolae Iorga, nr.7B.
Pentru mai multe informatii si date exacte sunati acum si stabiliti o intalnire cu unul din consultantii nostri: Bamboi Gabriel la tel. 0754.455.523: Mihaela Tehutu la tel.0743.928.736,

Facilități

  • Incalzire: Centrala Proprie
  • Mobilat: Nemobilat
  • Termopane
  • Gresie Faianta
  • Parchet
  • Gaz
  • Geam la Baie
  • Apometre
  • Usa Metalica
  • Var Lavabil
  • Aer Conditionat
  • Cablu Tv
  • Telefon fix
  • Internet
  • Interfon

Contact Agent