Universitatea Al.I.Cuza

COPOU

Caracteristici

Codul ofertei
TNT16741
Oferta
Vanduta/Inchiriata
Locație
Universitatea Al.I.Cuza , COPOU
Preț
135.000 Euro
Categorie:
Apartament
Compartimentare:
Decomandat
Tip:
Vanzare
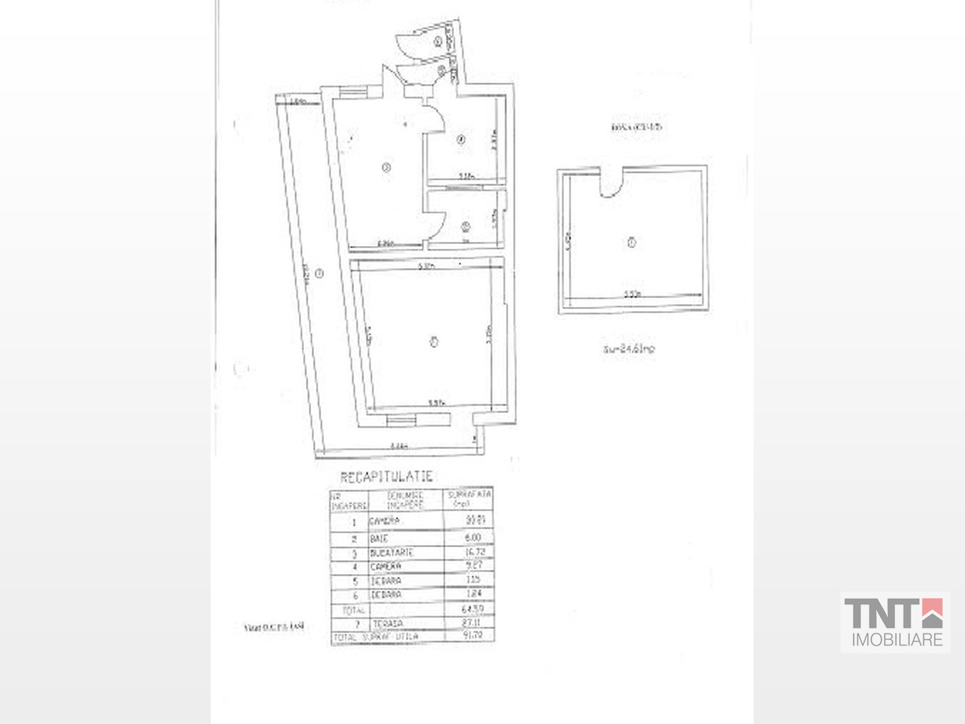
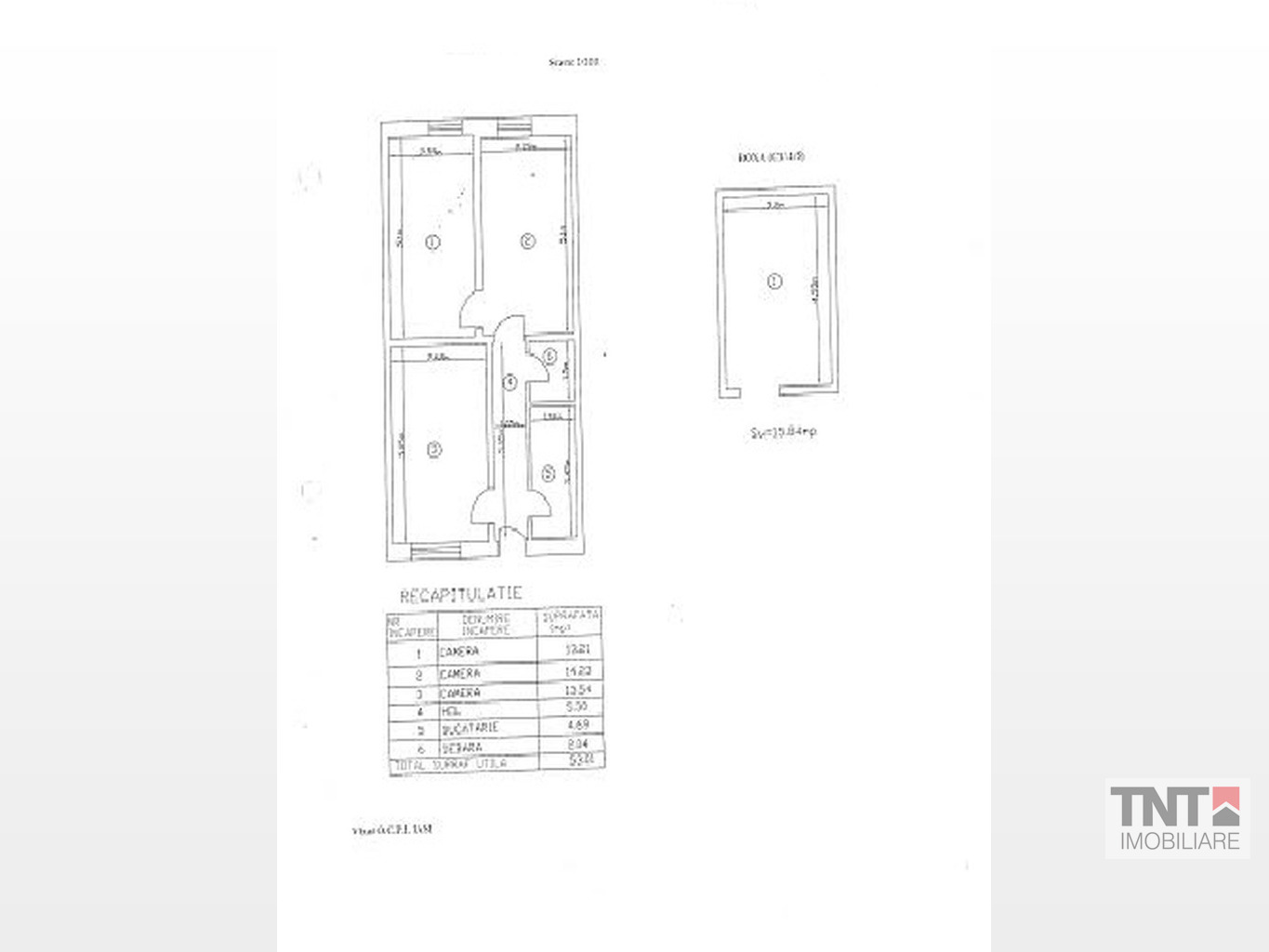
Suprafață:
92 m2
Camere:
3
Bai:
2
Bucatarie:
1
Balcoane:
1
Etaj:
1 din 1
Confort:
Confort I
An Constructie:
1960
Structura:
Caramida
Acoperis Mansardat:
Nu
Clasificare Seismica:
Absent

Descriere

Vanzare apartament 3 camere Copou-Universitate.

Apartamentul este in Copou la bulevard, etaj 1 din 1 cu pod din constructie, suprafata de 92 mp.

Apartamentul este amplasat intr-o zona linistita, intr-un bloc din 1960, fara risc seismic,planseuri din beton,constructie foarte solida. In apropiere avem Universitatea Alexandru Ioan Cuza, Liceul Costache Negruzzi, Biblioteca Central Universitara, scoli, gradinite, statii mijloace de transport, farmacii, banci, magazine non stop.

Apartamentul necesita imbunatatiri.

Pentru mai multe detalii apelati consilierul imobiliar MIHAELA TEHUTU la tel. 0743.928.736,BAMBOI GABRIEL la tel.0754.455.523

Facilități

  • Incalzire: Debransat
  • Mobilat: Nemobilat
  • Termopane
  • Parchet
  • Gaz

Contact Agent